BLACK FRIDAY - 30% POPUSTA na pripreme za maturu!

-

Likovni - 2010./11. ljeto - 22.

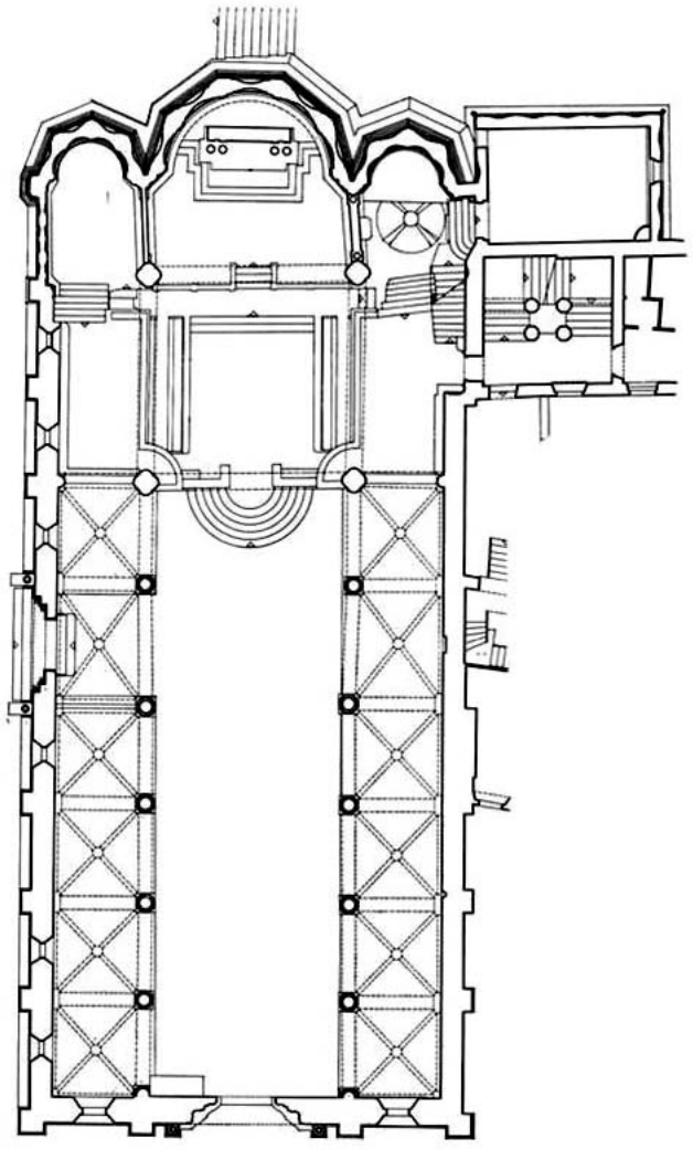
22. Pozorno promotrite likovni primjer.
22.1. Na prikazanome tlocrtu zasjenite križište građevine.
Odgovor je slika...
22.2. U kojim je stoljećima nastajala građevina? (Dva su odgovora točna.)
\[0 \quad 1\]
22.3. Što se nalazi iznad križišta građevine?
22.4. Kakav je tip građevine prikazan na tlocrtu?
22.3.
$�?�?�?�?$
$�?�?�?�?$
L
A. dvoranski
Online pripreme za maturu i instrukcije za srednju školu. Dostupno 24/7.
© 2025, Gradivo.hr