Instrukcije
Pripreme za maturu
Online skripte
Besplatni materijali
Isprobaj besplatno
Likovni - 2024./25. jesen - 4.
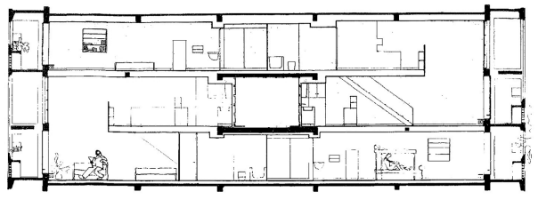
Na prikazanome presjeku građevine strelicom ucrtajte smjer pogleda na prostor prikazan fotografijom.
Odgovor je slika...
1 bod
Provjeri odgovore
Online pripreme za maturu i instrukcije za srednju školu. Dostupno 24/7.
Naša ponuda
Online instrukcije
Pripreme za maturu
Preuzmi sve mature
Besplatni materijali
Blog
Merch - eDrevnik i Tier listić
Online skripte
Kemija
Fizika
Matematika
Hrvatski
Engleski
Pravne stranice
Uvjeti korištenja
Politika privatnosti
© 2026, Gradivo.hr
Postavke kolačića
Isprobaj besplatno
ŠTO ČEKAŠ?
Isprobaj potpuno
besplatno!
Registracijom dobivaš besplatan*
pristup dijelu lekcija za svaki predmet.
*Besplatan pristup ne zahtijeva unos kartice.
ZA MATURANTE
Online pripreme
OD 1. DO 4. RAZREDA
Online instrukcije