Instrukcije
Pripreme za maturu
Online skripte
Besplatni materijali
Isprobaj besplatno
Isprobaj besplatno
Likovni - 2019./20. jesen - 18.
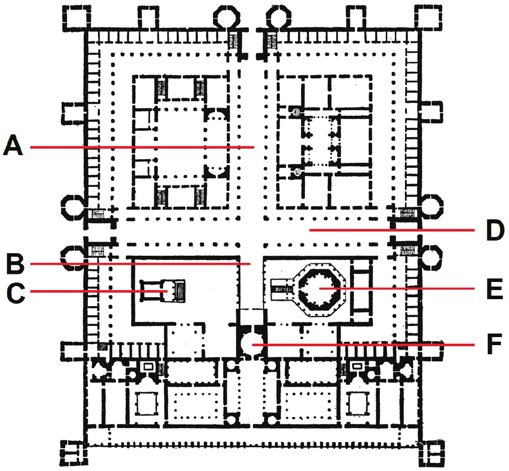
Pozorno promotrite prikazani tlocrt i svaki navedeni dio tlocrta povežite s jednim slovom (od A do F) kojim je taj dio označen.
1. cardo
2. mauzolej
3. peristil
4. vestibul
1 bod
Provjeri odgovore
ŠTO ČEKAŠ?
Isprobaj potpuno
besplatno!
Registracijom dobivaš besplatan*
pristup dijelu lekcija za svaki predmet.
*Besplatan pristup ne zahtijeva unos kartice.
ZA MATURANTE
Online pripreme
OD 1. DO 4. RAZREDA
Online instrukcije
Online pripreme za maturu i instrukcije za srednju školu. Dostupno 24/7.
Naša ponuda
Online instrukcije
Pripreme za maturu
Preuzmi sve mature
Besplatni materijali
Blog
Merch - eDrevnik i Tier listić
Online skripte
Kemija
Fizika
Matematika
Pravne stranice
Uvjeti korištenja
Politika privatnosti
Politika povrata novca
© 2025, Gradivo.hr
Postavke kolačića