Do kraja mjeseca - do 30% POPUSTA na priprema za maturu!

-

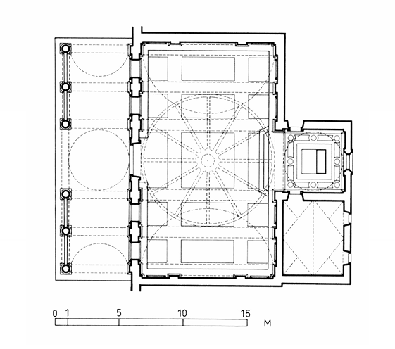
Likovni - 2010./11. jesen - 1.ZADATAK


Na tlocrtu:
1. iscrtajte obris gradevine
Odgovor je slika...
2. označite zlatni pravokutnik
Odgovor je slika...
3. označite modul gradevine
Odgovor je slika...
4. oznacite sferne elemente konstrukcije
Odgovor je slika...
5. označite os simetrije gradevine.
Odgovor je slika...
Online pripreme za maturu i instrukcije za srednju školu. Dostupno 24/7.
© 2026, Gradivo.hr